アンドオフィスHOME > 大阪市中央区 > 大阪市中央区難波3 貸事務所:賃貸事務所・賃貸オフィスフロア情報
| 【設備】 | ||
|---|---|---|
| オートロック | 機械警備 | 管理人 |
| EV | 人荷用EV | 光ファイバー |
| 男女トイレ別 | ウォシュレット | 24時間使用 |
| OAフロア | 個別空調 | 集中空調 |
| 駐車場 | 駐輪場 | |
| 物件番号 | 82167 | ||
|---|---|---|---|
| 所在地 | 大阪市中央区難波3丁目 | ||
| 構造 | 鉄骨鉄筋コンクリート造 地上11階 /地下1階 建て | ||
| 築年月 | 1983年12月 | ||
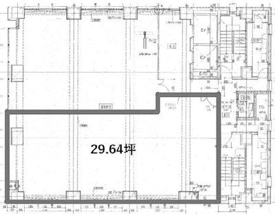
| 坪数 | 29.64坪 (97.98㎡) | ||
| 募集階 | 8階 | 室番号 | 802 |
| 賃料 | 770,640円[税別] (@26,000)【税込:847,704円】 | ||
| 共益費 | 0円[税別] (@0)【税込:0円】 | ||
| 賃料合計 | 770,640円[税別] (@26,000)【税込:847,704円】 | ||
| 保証金 | 8ヶ月 | 敷引 | 1ヶ月 |
| 沿線・最寄駅 | 「難波」駅 徒歩1分 - 近鉄奈良線|南海本線|南海高野線|御堂筋線|四つ橋線|千日前線 「JR難波」駅 徒歩5分 - JR関西本線 |
||
| おすすめポイント | ◆大通沿い ◆新耐震基準 ◆店舗使用可 | ||
| 備考 |
エレベーター2基/1階部分に看板スペースあり 前:スーツ店/事務所仕様/物販・サービス・アパレルなど/定借:5年/火災保険・保証会社:加入要/再契約更新料:1ヶ月要/トイレ共用 |
||
| コメント | 【物販・サービス】大阪市中央区 難波3丁目 なんばマルイ隣のビル 8F 物販・サービス最適 貸店舗! ※詳細・内覧希望などは、お気軽にお問い合わせください。 |
||
ホームページ掲載条件は、募集条件での表記となります。実際の相場に応じて、
大幅な条件交渉のできる物件もございます。まずは、お気軽にお問い合わせください。
| カテゴリー | 大阪市中央区 難波3丁目 貸店舗 貸しテナント 物販・サービス 空中店舗 | ||
|---|---|---|---|

















